Inpro Manufactury

Charlotte, NC / 2024
Industrial Warehouse & Office / Little

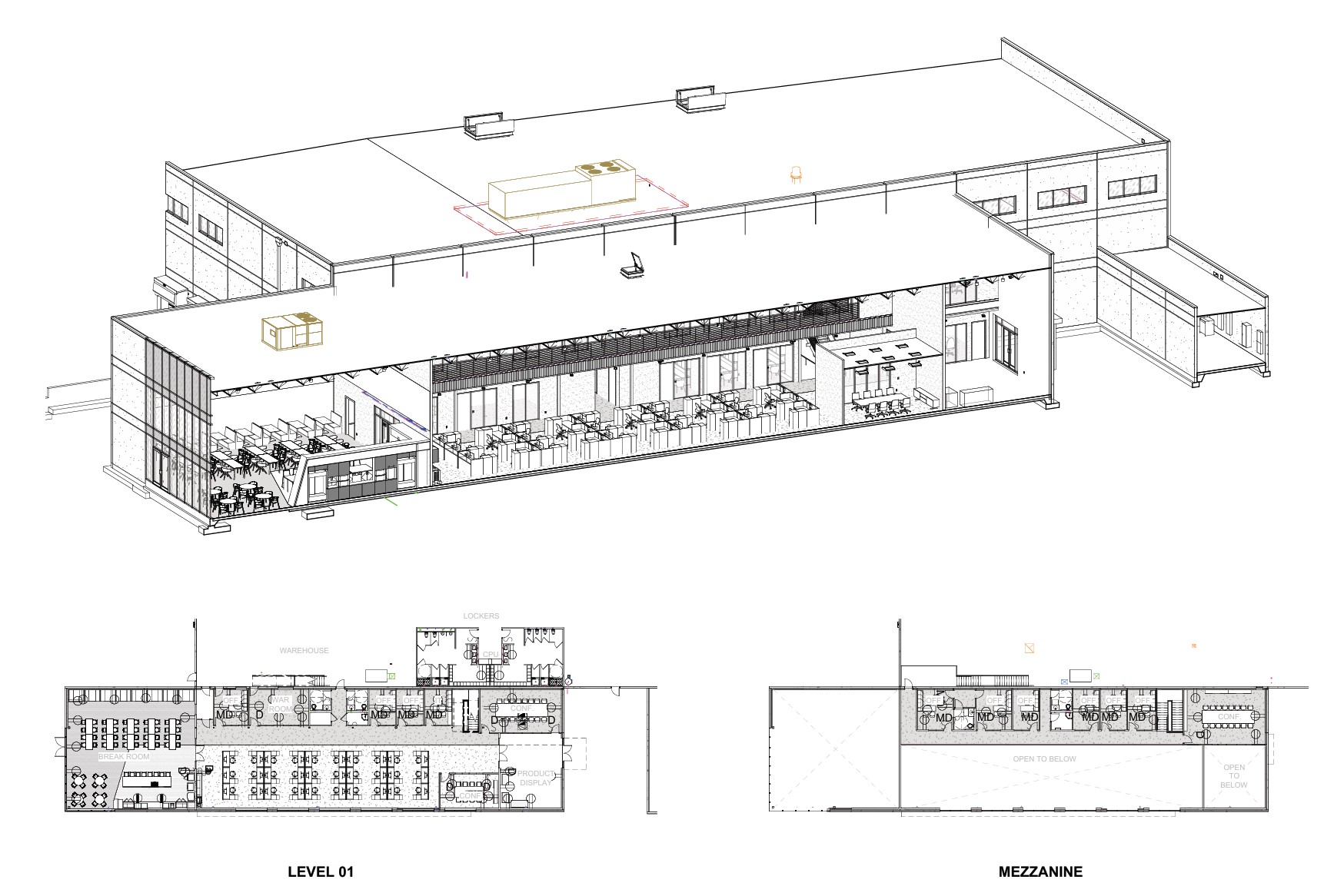
A 175,000 SF industrial warehouse and office hub designed for Inpro, one of the U.S.'s leading architectural product manufacturers. The project emphasizes functionality, flexibility, and the integration of maker-space strategies for prototyping and collaborative production.


Key components include warehouse infrastructure, controlled daylight strategies, and precise coordination of architectural, MEP, and equipment systems during construction. My role focused on managing construction administration, facilitating owner-driven design changes, and delivering technical data sets for execution.