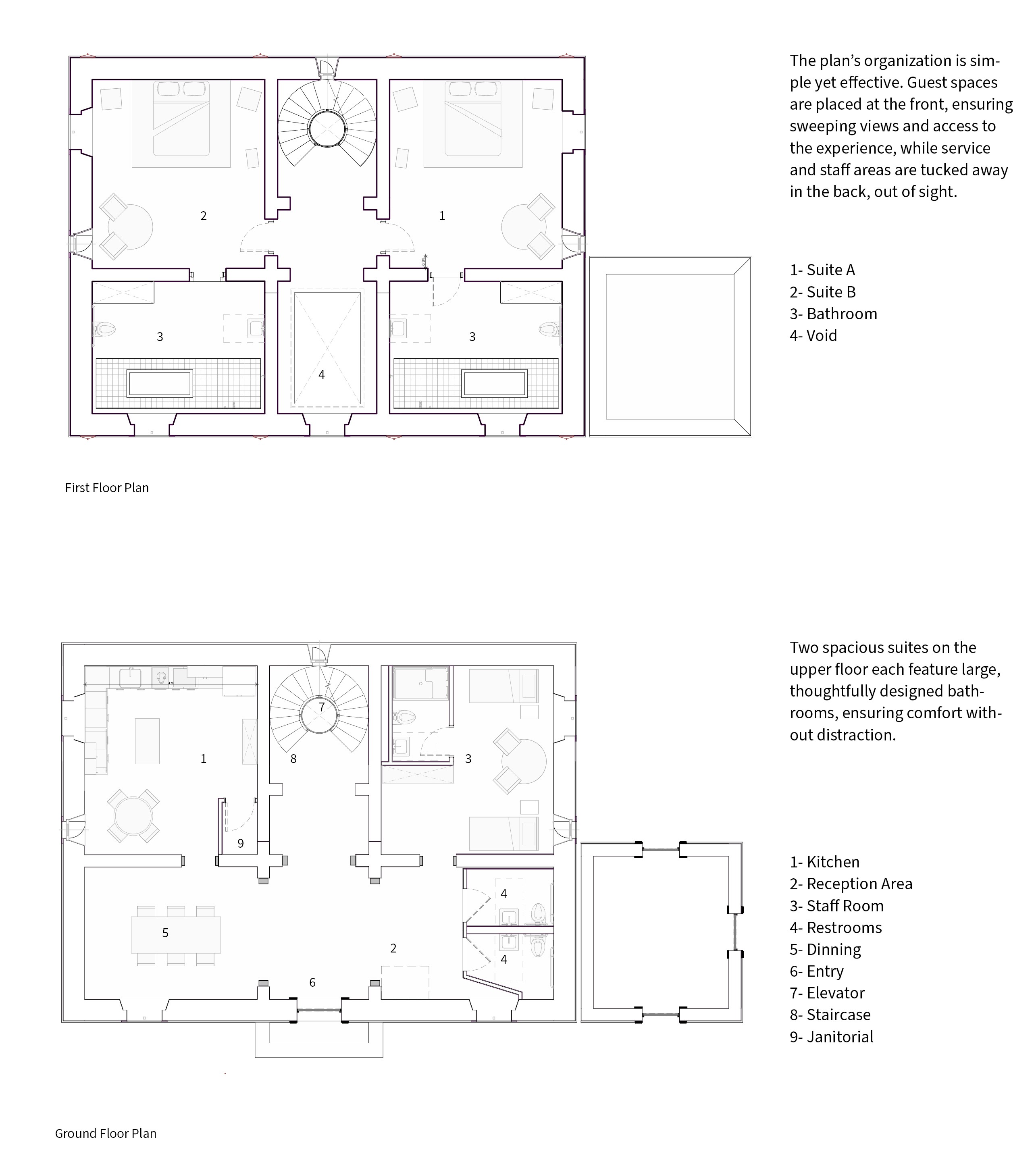
Where the Light Unfolds

Italy / 2024
Boutique Hotel Competition / Individual

Where the Light Unfolds captures the seamless flow between interior and exterior spaces, creating a cohesive experience that mirrors the paradox of life inside a lighthouse. Living here is about contrasts—soft and hard, light and dark, peaceful mornings and turbulent nights.


The fabric and stone work together to evoke these opposing forces, where fluidity meets solidity, and comfort meets the rawness of nature. The fabric draped across parts of the ground, walls, and furniture guides the movement within the space, creating a pattern of circulation that feels natural and immersive.

Next Project Data Farm →